Objektbeschreibung
Hier präsentiert sich eine großzügig geschnittene Maisonette-Wohnung in einem schönen Fachwerkhaus; mit herrlichem Blick über die Stadt. Maisonnette: mit eigener, innerhalb der Wohnung liegender Treppe. Die Einheit liegt zentral am Marktplatz -direkt gegenüber dem Geburtshaus von Doktor Oetker in Obernkirchen. Geschäfte des täglichen Gebrauchs sind schnell zu erreichen.
Ausstattung
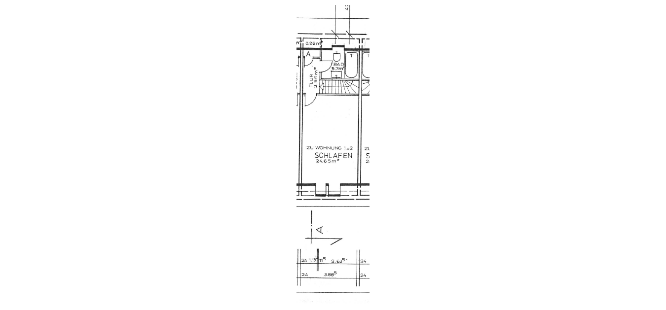
Die gemütliche Wohnung teilt sich wie folgt auf: 1. OG - Küche, Wohnzimmer, Flur inkl. Zugang zur Terrasse 2. OG - Schlafzimmer, vollständig renoviertes Badezimmer, Abstellraum Bad und Küche sind gefliest. Die restlichen Räume sind teilweise mit einem Vinyl-Designbelag oder Laminat in Holzoptik verlegt ausgestattet.
Lage
Obernkirchen liegt an der Bundesstraße 65 zwischen Bückeburg und Stadthagen. Der waldreiche Bückeberg nimmt einen großen Teil der Stadtfläche ein. Durch das Stadtgebiet verläuft westlich der Kernstadt die B 65 von Hannover nach Minden durch die Ortsteile Gelldorf und Vehlen. Die nächstgelegene Anschlussstelle zur BAB 2 befindet sich im benachbarten Bad Eilsen. Der ÖPNV wird durch die Schaumburger Verkehrs-Gesellschaft mit mehreren Linien betrieben. Der Bahnhof Obernkirchen liegt an der Bahnstrecke Rinteln–Stadthagen.
Umgebungskarte ansehen
Sonstige Angaben
Haben wir Ihr Interesse geweckt, dann vereinbaren Sie noch heute einen Besichtigungstermin mit uns. Für Fragen stehen wir Ihnen gerne zur Verfügung.
Raumangebot
| Raum | Fläche |
|---|---|
| Fläche | 68.00 m² |
| Gesamtfläche | 68 m² |
Ausstattung
Heizung
- Zentralheizung
Zustand
- Zustand: Saniert
Ausstattung
- Ausstattungsqualität: Normal
Energie
- Energieausweis vorhanden (Bedarf: 190,00 kWh/(m²*a))
Grundriss 1
Grundriss 2
Bildergalerie
Objektdaten
Preise
Lage
Deutschland, 31683 Obernkirchen, Markt 5, 31683 Obernkirchen