Wohnfläche
109,5 m²
Zimmer
0
Etage
1. OG-2.OG
Fertigstellung
03/2026

Objektbeschreibung

WHG 28-1113

Inmitten der charmanten Innenstadt von Telgte, direkt um die historische Kornbrennerei, entsteht derzeit ein modernes und hochwertig konzipiertes Wohn- und Geschäftshaus, das städtisches Leben mit hohem Wohnkomfort und zukunftsweisender Technik vereint. Das Projekt umfasst insgesamt ca. 40 moderne Wohnungen, die sich auf mehrere Gebäudeteile verteilen. Die Wohneinheiten zeichnen sich durch durchdachte Grundrisse, lichtdurchflutete Räume und eine zeitgemäße Ausstattung aus – ideal für Singles, Paare, Familien und Senioren. Ergänzt wird das Wohnkonzept durch gewerbliche Flächen im Erdgeschoss, die Platz für Einzelhandel, Gastronomie oder Dienstleister bieten und so zur Belebung des Quartiers beitragen. Der Neubau ist barrierefrei geplant und verfügt über fünf separate Treppenhäuser, die jeweils mit einem komfortablen Aufzug ausgestattet sind. Dies ermöglicht einen bequemen Zugang zu allen Etagen – auch mit Kinderwagen oder Rollator. Es steht zudem eine geräumige Tiefgarage mit Stellplätzen zur Anmietung zur Verfügung, sodass das Auto sicher und wettergeschützt abgestellt werden kann. Das Gebäude wird energieeffizient nach aktuellen hohen Standards errichtet. Unter anderem sorgt ein umweltfreundliches Geothermie-Heizsystem für nachhaltige Wärme- und Kälteversorgung, was langfristig auch wirtschaftliche Vorteile für die Bewohner mit sich bringt. Die Fertigstellung der ersten Abschnitte ist für das 1. Quartal 2026 geplant. Bereits jetzt ist das Interesse groß – eine frühzeitige Kontaktaufnahme wird empfohlen.

Lagebeschreibung

Diese Wohnung erstreckt sich über 2 Etagen (1. OG und 2. OG) des Wohngebäudes.

Einkaufsmöglichkeiten, Cafés, Restaurants, Schulen und Ärzte sind bequem erreichbar und bieten eine hervorragende Nahversorgung. Die Anbindung an den öffentlichen Nahverkehr ist optimal – der Bahnhof Telgte sowie Bushaltestellen erreichen Sie in nur wenigen Gehminuten.

Naturliebhaber profitieren von zahlreichen Radwegen und Erholungsgebieten entlang der Ems.

Raumangebot

Raum Fläche
Wohnen / Essen / Küche 28.81 m²
Abstellraum 2.72 m²
Flur 5.34 m²
Gäste-WC 2.44 m²
Technik 1.43 m²
Arbeiten 6.59 m²
Diele 6.16 m²
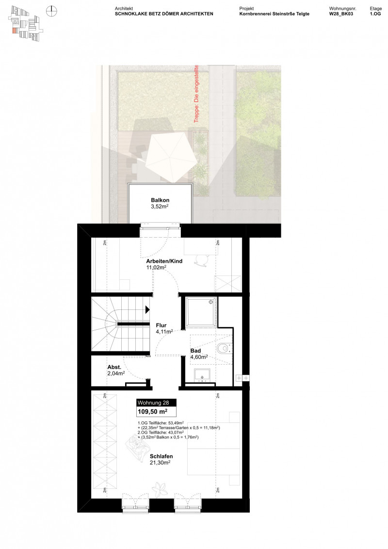
Flur (obere Etage) 4.11 m²
Abstellraum (obere Etage) 2.04 m²
Bad (obere Etage) 4.60 m²
Schlafen (obere Etage) 21.30 m²
Arbeiten 11.02 m²
Terrasse/Garten 22.35 m²
Balkon 3.52 m²
Gesamtfläche 109,5 m²

Grundriss 1

Grundriss Wohnung 1113

Grundriss 2

Grundriss Wohnung 1113

Bildergalerie

Telate Quartier - Header

Telate Quartier - Header

Objektdaten

Objektart: Wohnung
Adresse: Königstraße 34b
Ort: 48291 Telgte
Stockwerk: 1. OG-2.OG
Aufzug: Ja
Balkon/Terrasse: Balkon, Terrasse mit Gartenanteil

Preise

Miete: 1.300,00 €
Betriebskosten: 150,00 €
Heizkostenpauschale: 190,00 €
Parkplatz: 50,00 €

Lage

Königstraße 34b, 48291 Telgte