Objektbeschreibung
Schöne große 3-Zimmer-Wohnung im 1. OG eines Wohn- und Geschäftshaus. Die ehemaligen Bürofläche wurde zu einer Wohnung umgebaut.
Ausstattung
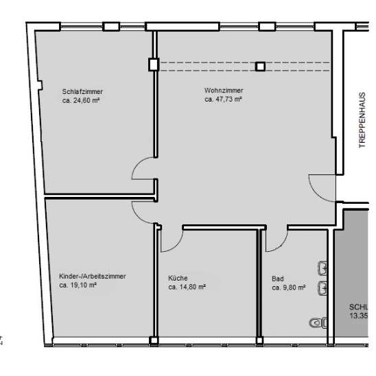
Wenn man die Wohnung betritt, steht man direkt im schönen großen Wohnzimmer, von hier aus kann man alle anderen Räume betreten. Der Boden in den Wohn- und Schlafräumen ist mit Laminat ausgelegt. Die Fenster wurden komplett erneuert. Die Wohnfläche teilt sich auf in 1 Wohnzimmer, 2 Schlafzimmer, Küche und ein komplett renoviertes Badezimmer mit 2 Waschbecken und Dusche.
Lage
Das Objekt liegt an einer kleineren Straße in der Nähe der Fußgängerzone.
Umgebungskarte ansehen
Sonstige Angaben
Haben wir Ihr Interesse geweckt, dann vereinbaren Sie einen Besichtigungstermin. Für Fragen stehen wir Ihnen gerne zur Verfügung.
Raumangebot
| Raum | Fläche |
|---|---|
| Fläche | 116.00 m² |
| Gesamtfläche | 116 m² |
Ausstattung
Heizung
- Zentralheizung
Zustand
- Zustand: Gepflegt
Ausstattung
- Ausstattungsqualität: Normal
Energie
- Energieausweis vorhanden (Bedarf: 180,30 kWh/(m²*a))
Grundriss 1
Bildergalerie
Objektdaten
Preise
Lage
Steinweg 36-37, 37581 Bad Gandersheim