Wohnfläche
416 m²
Zimmer
0
Etage
Fertigstellung
12/2025

Objektbeschreibung

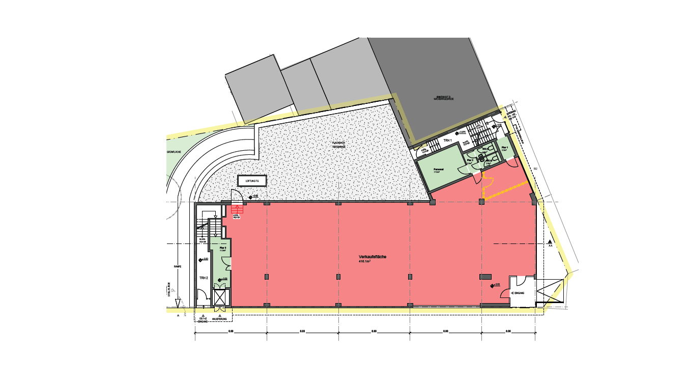
Diese helle und großzügig geschnittene Gewerbeeinheit befindet sich im Erdgeschoss eines modernen Wohn- und Geschäftshauses in zentraler Lage von Marsberg. In der nähe vom Bahnhof und von der Einkaufszone entfernt, bietet der Standort eine hervorragende Erreichbarkeit und Sichtbarkeit. Die vielseitig nutzbare Fläche wird durch eine Tiefgarage mit insgesamt 20 Stellplätzen ergänzt – ideal für Kunden, Mitarbeiter oder Besucher. Der Zugang zur Einheit ist dank eines vorhandenen Aufzugs barrierefrei und somit für jede Nutzungsart optimal geeignet.

Ausstattung

Der Boden ist gefliest, und durch die großen Fenster strahlt viel Licht in die Einheit. Die Einheit ist aufgeteilt in einen großzügigen Verkaufsraum mit ca. 416 m², einen Personalraum sowie zwei WC-Anlagen. Büroräume können bei Bedarf abgetrennt werden.

Lage

Marsberg ist eine Kleinstadt mit rund 20.000 Einwohnern im nordöstlichen Sauerland, etwa 29 km von Paderborn entfernt. Nördlich von Marsberg grenzt der Naturpark Teutoburger Wald. Marsberg liegt an der B7 und ist über die A44 erreichbar. Der Marsberger Bahnhof wird von der oberen Ruhrtalbahn (Hagen–Warburg) bedient.

Umgebungskarte ansehen

Sonstige Angaben

Haben wir Ihr Interesse geweckt? Dann freuen wir uns auf Ihren Anruf. Miete: nach individueller Umbauten und der Mietvertragskonditionen wie z.B. Laufzeit, Optionen, Nebenkosten. Bei weiteren Fragen können Sie sich gerne bei uns melden!

Raumangebot

Raum Fläche
Verkaufsfläche 416.00 m²
Gesamtfläche 416 m²

Ausstattung

Ausstattung

  • Bodenbelag: Fliesen
  • Ausstattungsqualität: Normal

Heizung

  • Ölheizung

Zustand

  • Zustand: Gepflegt

Parken

  • 20 Stellplätze

Zugang

  • Anlieferung: Direkter Zugang

Energie

  • Energieausweis vorhanden (Verbrauch: 239.1 kWh/(m²*a))

Grundriss 1

Grundriss

Objektdaten

Objektart: Verkaufsfläche
Adresse: Bahnhofstraße 13
Ort: 34431 Marsberg
Stockwerk:
Aufzug: Nein

Preise

Miete: Auf Anfrage

Lage

Bahnhofstraße 13, 34431 Marsberg